1/4
Aprašymas
PARDUODAMA SODYBA KAZLŲ RŪDOS SAV., JŪRĖS K., ŽILVIČIO G. 8
Parduodama jauki sodyba labai geroje vietoje – Kazlų Rūdos savivaldybėje, Jūrės kaime, apsupta gamtos ir miškų. Tai puikus pasirinkimas norintiems gyventi ramiai, šalia gamtos, tačiau su patogiu susisiekimu ir miesto infrastruktūra.
NAMAS
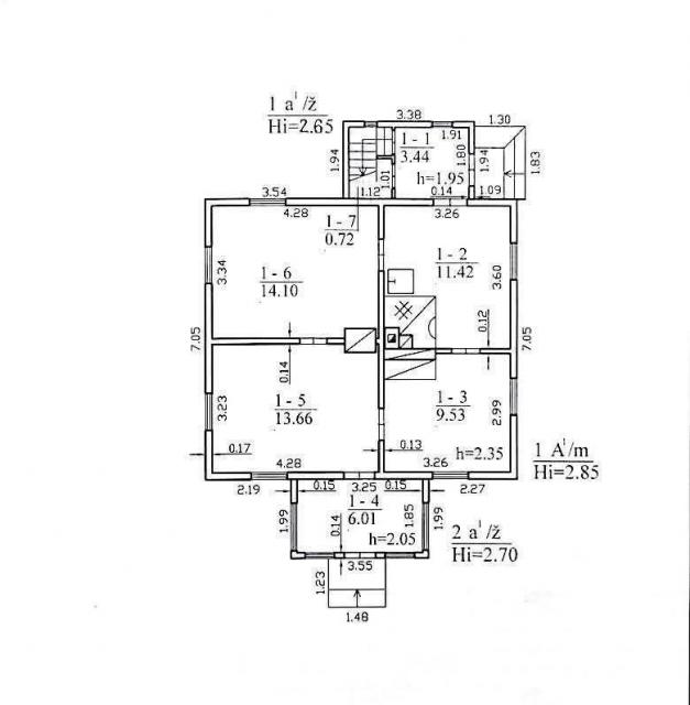
• Bendras plotas – 58,88 kv. m
• 2 kambariai + virtuvė, mansarda (neįrengta)
• Tipas – rąstinis
• Statybos metai – 1974 m.
• Įrengtas, gyventi galima iš karto, tačiau reikalingas remontas
• Aukštai – 1 aukštas su mansarda
• Langai – dalis pakeista plastikiniais, dalis likę mediniai
• Vaizdas – į kiemą
KOMUNIKACIJOS

+ Elektra – nauja, atvesta trifazė (11 kW)
+ Vanduo – miesto
+ Kanalizacija – miesto
+ Dujos – balionas
+ Šildymas – krosninis
+ WC ir dušas – įrengti namo viduje
SKLYPAS
Kadastriniai matavimai,
Plotas – 15,41 a.
Paskirtis – namų valda
Sklypas – aptvertas
Patogus privažiavimas – asfaltas iki pat sodybos
Parkavimas – sklype
VIETA IR APLINKA
• Gyvenvietė – Jūrės kaimas
• Kaimynystė – gyvenama
• Kazlų Rūda apsupta miškų – tai tarsi miestas miške
• Netoliese – parduotuvė (~900 m)
• Patogus susisiekimas, yra geležinkelio stotis
• Daug gamtos, žalių erdvių, dviračių ir pasivaikščiojimo takų
• Aktyvi bendruomenė, vasaromis vyksta renginiai, koncertai, sporto varžybos

ATSTUMAI
Marijampolė – ~26 km
Kalvarija – ~20 km
Šakiai – ~24 km
Prienai – ~20 km

PRIVALUMAI
• Asfaltuotas privažiavimas
• Miesto komunikacijos
• Didelis, aptvertas sklypas
• Gamtos apsuptis
• Galimybė pritaikyti sodybą pagal savo poreikius
• Tinka tiek gyvenimui, tiek poilsiui ar nedidelei komercinei veiklai
Lokacija: https://maps.lt/short/72199ded
Rodyti daugiau

PARDUODAMA SODYBA KAZLŲ RŪDOS SAV., JŪRĖS K., ŽILVIČIO G. 8

39.500 €
Paskelbė 02 vasario 16:07.
Žinutės
Žiūrėti numerį
Aprašymas
PARDUODAMA SODYBA KAZLŲ RŪDOS SAV., JŪRĖS K., ŽILVIČIO G. 8
Parduodama jauki sodyba labai geroje vietoje – Kazlų Rūdos savivaldybėje, Jūrės kaime, apsupta gamtos ir miškų. Tai puikus pasirinkimas norintiems gyventi ramiai, šalia gamtos, tačiau su patogiu susisiekimu ir miesto infrastruktūra.
NAMAS
• Bendras plotas – 58,88 kv. m
• 2 kambariai + virtuvė, mansarda (neįrengta)
• Tipas – rąstinis
• Statybos metai – 1974 m.
• Įrengtas, gyventi galima iš karto, tačiau reikalingas remontas
• Aukštai – 1 aukštas su mansarda
• Langai – dalis pakeista plastikiniais, dalis likę mediniai
• Vaizdas – į kiemą
KOMUNIKACIJOS

+ Elektra – nauja, atvesta trifazė (11 kW)
+ Vanduo – miesto
+ Kanalizacija – miesto
+ Dujos – balionas
+ Šildymas – krosninis
+ WC ir dušas – įrengti namo viduje
SKLYPAS
Kadastriniai matavimai,
Plotas – 15,41 a.
Paskirtis – namų valda
Sklypas – aptvertas
Patogus privažiavimas – asfaltas iki pat sodybos
Parkavimas – sklype
VIETA IR APLINKA
• Gyvenvietė – Jūrės kaimas
• Kaimynystė – gyvenama
• Kazlų Rūda apsupta miškų – tai tarsi miestas miške
• Netoliese – parduotuvė (~900 m)
• Patogus susisiekimas, yra geležinkelio stotis
• Daug gamtos, žalių erdvių, dviračių ir pasivaikščiojimo takų
• Aktyvi bendruomenė, vasaromis vyksta renginiai, koncertai, sporto varžybos

ATSTUMAI
Marijampolė – ~26 km
Kalvarija – ~20 km
Šakiai – ~24 km
Prienai – ~20 km

PRIVALUMAI
• Asfaltuotas privažiavimas
• Miesto komunikacijos
• Didelis, aptvertas sklypas
• Gamtos apsuptis
• Galimybė pritaikyti sodybą pagal savo poreikius
• Tinka tiek gyvenimui, tiek poilsiui ar nedidelei komercinei veiklai
Lokacija: https://maps.lt/short/72199ded
Rodyti daugiau

ANDŽELA

„Skelbus“ nuo gruodžio 2024

13 skelbimų


Kazlų Rūda

Kazlų Rūda
Pranešti

ANDŽELA

PARDUODAMA SODYBA KAZLŲ RŪDOS SAV., JŪRĖS K., ŽILVIČIO G. 8

Žiūrėti numerį
Žinutės